Friends of Laura
Back to home

Posted on: December 26, 2017 03:44 PM

Share : Facebook Twitter Email Whatsapp

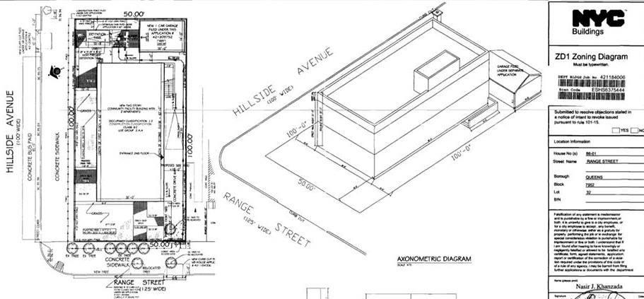
Mixed used building under construction in Queens Village

The location, 86-01 Range Street which is on the corner of Hillside Avenue near Winchester Blvd will be a two story building with mixed use according to NYC Dept of Building. The owner, Syed Hossan ran out of money to continue with construction after buying the previous home. Although permits were filed for a commercial lot but weren't complete. Now the lot has been refiled to use the ground floor as a Bangaladeshi community center to operate a non-profit center welcoming donations from the public. The second floor will be used a residential as per zoning. A time frame for completion has not been disclosed. pic by NYC DOB.

Sponsored by